schema installation panneaux solaires photovoltaïques
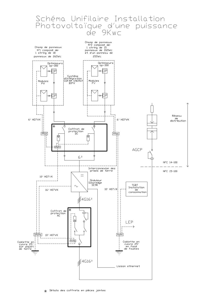
Schéma Installation Panneaux Solaires Photovoltaïques Dans le cadre de la transition énergétique, les installations de…
Schéma Installation Panneaux Solaires Photovoltaïques Dans le cadre de la transition énergétique, les installations de…
Optimisez votre installation avec un schéma détaillé Le recours aux énergies solaires est en plein…
Système Photovoltaïque Autonome : Schéma d'Installation Avec l’essor des énergies renouvelables, le système photovoltaïque autonome…
Dans un monde où les énergies renouvelables prennent une place toujours plus importante, le choix…
Comprendre le schéma d'installation photovoltaïque Le déploiement de systèmes photovoltaïques est devenu incontournable pour optimiser…